木幡南山

3,580万円

京都府宇治市木幡南山

奈良線「黄檗」駅徒歩15分

価格
3,580万円
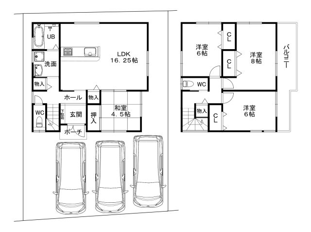
間取り/建物面積
4LDK/98.41㎡
所在地
京都府宇治市木幡南山
築年
2024年11月(新築)
駐車
有(3台)
交通

奈良線黄檗」駅 徒歩15分

木幡南山の基本情報

物件名
木幡南山
価格
3,580万円
建物面積
98.41㎡
土地面積
45.89坪(151.72㎡)
築年月
2024年11月(新築)
総戸数
-
所在地
京都府宇治市木幡南山
交通

奈良線黄檗」駅 徒歩15分

木幡南山の詳細情報

設備条件
  • 駐車3台可
設備(その他)
    -
駐車場/月額
有(3台)/0円
土地権利
所有権
国土法届出
不要
用途地域
第一種低層住居専用
取引態様
仲介
引渡し
相談

木幡南山で募集中の物件

  1. 29.76坪 (98.41㎡)

    3,580万円(120.3万円/坪)

周辺施設

  • 松陵児童遊園の画像

    公園

    松陵児童遊園

    128m(2分)

  • 黄檗中学校の画像

    中学校

    黄檗中学校

    602m(8分)

  • 社会福祉法人あじろぎ会宇治病院の画像

    外科

    社会福祉法人あじろぎ会宇治病院

    634m(8分)

  • FRESCO(フレスコ) 木幡店の画像

    スーパー

    FRESCO(フレスコ) 木幡店

    671m(9分)

  • 宇治小学校の画像

    小学校

    宇治小学校

    789m(10分)

近隣の物件

  1. 宇治市寺山台3丁目

    4SLDK (161.23㎡)

    2,680万円

  2. 宇治市広野町小根尾

    3LDK (76.74㎡)

    2,380万円

  3. 宇治市神明宮東

    3SK (112.21㎡)

    2,580万円

  4. 宇治市宇治大谷

    5LDK (106.82㎡)

    2,480万円

よく見られている物件

  1. 宇治市神明宮東

    3K+S(納戸) (112.21㎡)

    2,580万円

  2. 宇治市木幡南山

    4LDK (98.41㎡)

    3,580万円

  3. 城陽市寺田大谷

    2LDK (72.86㎡)

    3,390万円

  4. 宇治市寺山台3丁目

    4LDK+S(納戸) (161.23㎡)

    2,680万円

木幡南山

お気軽にお問い合わせください

無料お問い合わせ

株式会社O-HOME

0774-28-5788

09:00~19:00

(休:火曜日・水曜日)