木幡南山

3,580万円

京都府宇治市木幡南山

奈良線「黄檗」駅徒歩15分

価格
3,580万円
間取り
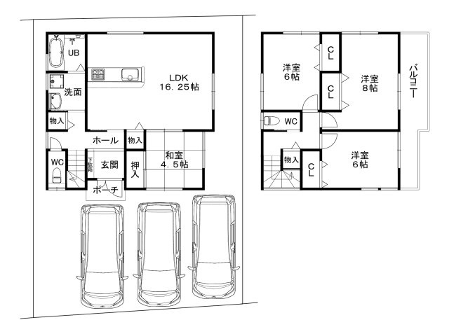
4LDK
土地面積
151.72㎡
所在地
京都府宇治市木幡南山
交通

奈良線黄檗」駅 徒歩15分

建物面積
98.41㎡
築年月
2024年11月(新築)

物件の特徴

  • バストイレ別

  • 室内洗濯機置場

  • 浴室乾燥機

セールスポイント

こだわりポイント満載の木幡南山。松陵児童遊園まで128mです。駅から徒歩15分に位置する物件です。機能的で使いやすいシステムキッチン付きなので、お料理を楽しめます。宇治市の奈良線黄檗近くで一戸建てをお探しなら、当社にご連絡ください。お客様からのお問い合わせをスタッフ一同お待ちしております。

ポイント

クロゼット3ヶ所 浴室1坪以上 クロゼット 洗面所に窓 バルコニー

担当者のコメント

松陵児童遊園まで128mです。きれいで使い勝手の良いシステムキッチン付きの物件になります。内部が広々としている押入があり、たくさんのものを収納できます。駅まで歩いて行くことのできる、駅徒歩15分の物件です。宇治市での暮らしは非常に快適なので、きっとお客様にも満足していただけるでしょう。不動産の購入を検討しているのであれば、当社にお任せください。

基本情報

販売戸数
-
総戸数
-
間取り / 詳細
4LDK
LDK 16.3帖 1室/和室 4.5帖 1室/洋室 6.0帖 2室/洋室 8.0帖 1室
向き
-
建物面積(坪数)
98.41㎡(29.76坪)
土地面積(坪数)
151.72㎡(45.89坪)
建ぺい率 /
容積率
50%/80%
築年月
2024年11月(新築)
駐車場 / 月額
有(3台) / -
土地権利
所有権
土地
(敷金 / 保証金)
- / -
建物構造
木造 / 2階建
傾斜地部分面積
-
路地状敷地
-
私道負担面積
-
セットバック
高圧線下面積
-
施工会社
-
用途地域
第一種低層住居専用
地目 / 地勢
宅地 / 平坦
接道状況
一方(南 公道 4.8m)
国土法届出要否
不要
都市計画
市街化区域
総区画数 /
販売区画数
-/-
現況
完成済み
その他
法令上の制限
高度地区
取引態様
仲介
引渡し
相談
取引条件の
有効期限
2026年03月30日

設備条件

設備条件
  • 室内洗濯機置場 / フローリング / バルコニー / 都市ガス / 公営水道 / 公共下水 / 電気有 / 駐車3台可 / システムキッチン / バス・トイレ別 / 浴室乾燥機 / 温水洗浄便座 / 浴室1坪以上 / 床下収納
設備(その他)
    -

その他

物件番号
93540923
管理コード
-
建築確認番号
-
情報更新日
2026年03月16日
次回更新予定日
2026年03月30日
取扱会社
  • 株式会社O-HOME
  • 京都府宇治市神明宮北16-26 
  • TEL:0774-28-5788
  • 京都府知事 (4) 第12275号
    一般建設業 建築工事業 京都府知事許可(般-2)第36350号
  • (公社)全日本不動産協会
備考
新生活を失敗せず、スタートさせたいならこちらの「木幡南山」はいかがでしょうか。3,580万円の物件で、ゆとりのある理想の生活をおくりましょう。動線を意識したデザインのシステムキッチン付きで作業能率が上がります。当社スタッフとマイホームを探しましょう。宇治市や奈良線黄檗付近での住まい探しを全力でサポート致します。まずはお気軽にご連絡ください。

周辺施設

  • 松陵児童遊園の画像

    公園

    松陵児童遊園

    128m(2分)

  • 黄檗中学校の画像

    中学校

    黄檗中学校

    602m(8分)

  • 社会福祉法人あじろぎ会宇治病院の画像

    外科

    社会福祉法人あじろぎ会宇治病院

    634m(8分)

  • FRESCO(フレスコ) 木幡店の画像

    スーパー

    FRESCO(フレスコ) 木幡店

    671m(9分)

  • 宇治小学校の画像

    小学校

    宇治小学校

    789m(10分)

支払いシミュレーション

月々の支払額
購入希望物件価格
万円
頭金
万円
金利
%
返済額(ボーナス1回分)
万円
返済期間

※ボーナスは自動で年2回分で計算されます。

近隣の物件

  1. 寺山台3丁目

    宇治市寺山台3丁目

    4SLDK (161.23㎡)

    2,680万円

  2. 広野町小根尾 新築戸建て

    宇治市広野町小根尾

    3LDK (76.74㎡)

    2,380万円

  3. 神明宮東 店舗付き住宅

    宇治市神明宮東

    3SK (112.21㎡)

    2,580万円

よく見られている物件

  1. 神明宮東 店舗付き住宅

    宇治市神明宮東

    3K+S(納戸) (112.21㎡)

    2,580万円

  2. 木幡南山

    宇治市木幡南山

    4LDK (98.41㎡)

    3,580万円

  3. Feel 寺田大谷

    城陽市寺田大谷

    2LDK (72.86㎡)

    3,390万円

  4. 寺山台3丁目

    宇治市寺山台3丁目

    4LDK+S(納戸) (161.23㎡)

    2,680万円

木幡南山

木幡南山

3,580万円

-

4LDK(98.41㎡)

お気軽にお問い合わせください

無料お問い合わせ

株式会社O-HOME

0774-28-5788

09:00~19:00

(休:火曜日・水曜日)